Jeff Greenberg
Lighting Designer
Portfolio
Resume
Reviews
Contact Info
Drafting
- light plots
- 3D spaces
- 3D objects
Upcoming
Other
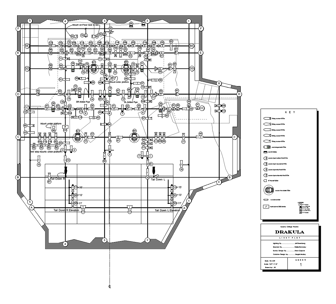
Drakula Light Plot
Queens College - Performance Space M11; Flushing, NY