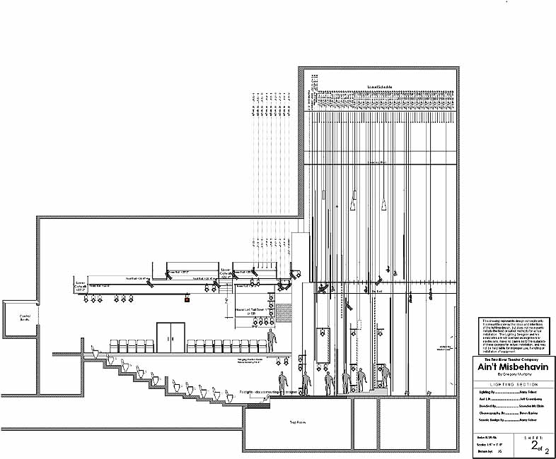
Ain't Misbehavin' Section

Two River Theatre; Red Bank, NJ
Drafted for Harry Feiner
Original drafting of space by: Anna Carhart